Bilocale in vendita

Tortona, Via Domenico Schiavi
€ 67.000
Prezzo aggiornato
2 locali 2 locali
60 Mq 60 Mq
1 bagno 1 bagno

Bilocale in vendita

Tortona, Via Domenico Schiavi

Descrizione annuncio

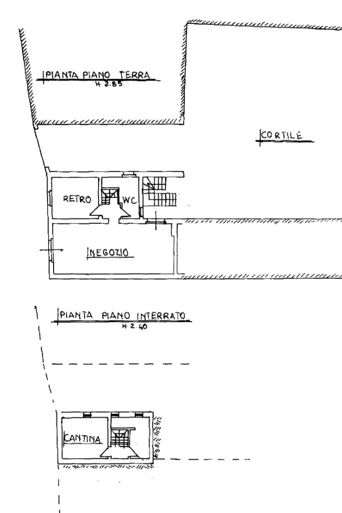
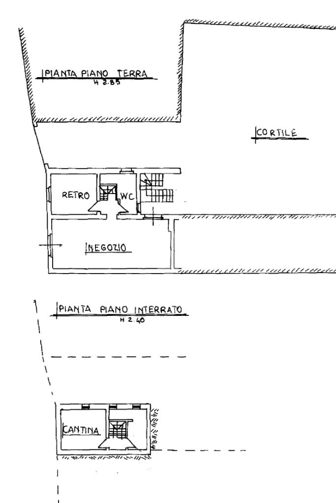
Un bilocale con carattere nel cuore del centro storico

Nel fascino del centro storico, dove ogni via racconta una storia, si trova questo bilocale al piano terra che unisce praticità e atmosfera.

L’ingresso principale accoglie in una zona giorno ampia e luminosa, dove una parete è già pronta per ospitare la cucina, cuore conviviale della casa. Da qui, lo sguardo si apre su spazi funzionali e ben distribuiti, ideali per chi desidera vivere o lavorare in un ambiente accogliente e curato.

Il bagno con finestra e doccia aggiunge comfort e luminosità, mentre la camera, raccolta e tranquilla, offre uno spazio riservato e silenzioso.

Una scala interna conduce alla cantina, un ambiente sorprendentemente asciutto e vivibile, dotato di termosifoni e bocche di lupo, dove arrivano già le utenze per un eventuale secondo bagno. Perfetta come spazio tecnico, area hobby o piccolo studio privato.

L’appartamento gode di due ingressi indipendenti: uno direttamente dalla strada e l’altro dal cortile condominiale, dove è disponibile un posto auto privato, una rarità nel cuore della città.

Attualmente utilizzato come ufficio, l’immobile si presta facilmente a un cambio di destinazione d’uso in abitazione, per chi sogna di vivere la vita di centro con ogni comodità a portata di mano.

Un luogo versatile, che si adatta ai ritmi di chi lavora, crea o semplicemente ama gli spazi autentici e pieni di potenziale.

Mostra tutto

Nelle vicinanze

Trasporto pubblico Trasporto pubblico
Tortona
Tortona
640 m
Fermata Bus N.4 - ARFEA
Fermata Bus N.4 - ARFEA
170 m
Fermata Bus N.9 - ARFEA
Fermata Bus N.9 - ARFEA
280 m
Ricariche auto elettriche Ricariche auto elettriche
Tortona Porta Ticinese | BeCharge
210 m
Tortona Tito Speri | BeCharge
380 m
Tortona De Gasperi | EnelX
530 m
EnelX EVA+ Tortona
770 m
Tortona Silla | EnelX
940 m
Scuole Scuole
Istituto Statale Istruzione Superiore Guglielmo Marconi
390 m
Scuola primaria "Gianni Rodari"
460 m
Farmacia Farmacia
Farmacia Centrale
430 m
Iper Farma
1,1 Km
Ospedali Ospedali
Ospedale Tortona
830 m
Supermercati Supermercati
Esselunga di Tortona
350 m
Gulliver
660 m
Iper
1,0 Km
Aldi
1,6 Km
LIDL
2,0 Km
Negozi Negozi
Smeck
440 m
Il mondo di pannolino
460 m
Il Fornaio S.R.L.
480 m
Negozi
620 m
Bar Bar
Zuccarelli
430 m
Bar
1,5 Km
Ristoranti Ristoranti
Trattoria del Ciccio
320 m
La pace
420 m
Napuleie
450 m
Al Voltone
660 m
Fujiyama
820 m
Mostra tutto

Caratteristiche

Rif.:
61125101
Piano:
Terra di 3
Totale piani:
3
Posti auto:
1
Camere da letto:
1
Arredamento:
Parziale
Mostra tutto
Prezzo Prezzo
€ 67.000
Rata mutuo Rata mutuo
€ 307 / mese
Spese annue Spese annue
€ 800
Proponi il tuo prezzoProponi il tuo prezzo
Immobile valutato con TecnoValore

Classe Energetica

E
E
E
E
E
E
E
E
E
EP globale non rinnovabile:
156.89 kW h/m² anno
EP invernale del fabbricato:
EP estiva del fabbricato:
Anno di costruzione:
1950
Riscaldamento:
Autonomo
Tipo impianto:
A radiatori
Tipo alimentazione:
Metano

Prezzo ridotto di €1 (3%%)

Ti interessa visionare l'immobile?

Fissa un appuntamento  Fissa un appuntamento

Richiedi informazioni

* Questi campi sono obbligatori

Calcola il tuo mutuo

Semplice e senza impegno
Anticipo

( % )
Mutuo

( % )

pochi semplici passi

inserisci i tuoi dati
Questionario completato
Grazie per aver richiesto un appuntamento senza impegno con un nostro Consulente del Credito e Assicurativo.

Hai inserito correttamente tutti i dati necessari e a breve riceverai una e-mail con un link da convalidare per inviare i tuoi dati.
Affiliato
Gs Immobiliare Srl
Via Emilia, 61 15057 Tortona (AL)

Il nostro staff


  • Salvatore Guidotti
    Affiliato

  • Giorgia Bragatto
    Coordinatrice

  • Lorenzo Lucarelli
    Responsabile
Via Emilia, 61 15057 Tortona (AL)
Zona: Tortona
Mostra su mappa
Orari: Dal lunedì al sabato 9:00-12:30 15:00-19:30
Affiliato
Gs Immobiliare Srl
Via Emilia, 61 15057 Tortona (AL)

2025 Tecnocasa Franchising S.p.A. - P. IVA 08365160152 - Via Monte Bianco 60/A 20089 Rozzano (MI). Ogni agenzia ha un proprio titolare ed è autonoma. Privacy policy | Policy utilizzo | Cookie policy